Proyectos de Obras
 
 
 
Ir a Linkedin         
Ir a Linkedin
 
Proyectos de Obras
  1. Obra Afrodita-Pinamar

    Obra Afrodita

    Subtitulo
    Pinamar - Provincia de Buenos Aires
    Proyecto de obra nueva

    Información demográfica
    Ubicación: Calle Afrodita, entre Delfos y De las Nereidas
    Pinamar | Provincia de Buenos Aires
    Superficie de la vivienda: 142 m2

    Vivienda unifamiliar, desarrollada en una planta, con Living comedor, cocina con desayunador, 2 dormitorios, 2 baños, vestidor, lavadero, garage, galería posterior con acceso desde ventanales, parrilla. El dormitorio principal es en suite con baño y vestidor.
    Más información:
    Ver...
  2. Obra Almagro

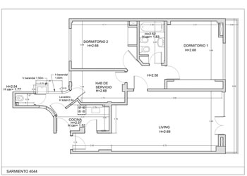
    Obra Sarmiento

    Subtitulo
    Almagro - Ciudad Autónoma de Buenos Aires
    Proyecto de remodelación

    Información demográfica
    Ubicación: Calle Sarmiento
    Almagro | Ciudad Autónoma de Buenos Aires
    Superficie de la vivienda: 82 m2

    Proyecto arquitectónico para la remodelación de un consultorio medico, acondicionándolo para vivienda.
    Más información:
    Ver...
  3. Obra Laguna Azul-Ezeiza

    Obra Laguna Azul

    Subtitulo
    Ezeiza - Provincia de Buenos Aires
    Proyectos de obras nuevas

    Información demográfica
    Ubicación: Barrio cerrado Laguna Azul, sobre la ruta 205, a la altura del Km 46,2
    Ezeiza | Provincia de Buenos Aires
    Superficie de las viviendas: de 67 m2 a 130 m2

    Proyecto del estudio Novahouses. Viviendas unifamiliares, desarrolladas en una planta y dos plantas, según la superficie, con Living comedor, cocina, 1 y 2 dormitorios, 1 y 2 baños, vestidor, parrilla.
    Más información:
    Ver...
  4. Obra Chacabuco-San Telmo

    Obra Chacabuco

    Subtitulo
    San Telmo - Ciudad Autónoma de Buenos Aires
    Proyecto de remodelación

    Información demográfica
    Ubicación: Calle Chacabuco
    San Telmo | Ciudad Autónoma de Buenos Aires
    Superficie de la vivienda: Monoambiente de 30m2 y terraza de 10m2

    Proyecto arquitectónico para la remodelación de la vivienda y su terraza.
    Más información:
    Ver...
  5. Obra Neogram

    Proyecto Neogram

    Subtitulo
    Agronomia - Ciudad Autónoma de Buenos Aires
    Proyecto de obra nueva de Invernáculo de Bioseguridad BS2

    Información demográfica
    Ubicación: Av. San Martin 4453
    Agronomía | Ciudad Autónoma de Buenos Aires
    Superficie del espacio: 72 m2

    Anteproyecto, cómputo y presupuesto de obra de Invernáculo de Bioseguridad BS2, según disposición del Ministerio de Agricultura, Ganadería y Pesca.
    Más información:
    Ver...
  6. Obra Arenales-Palermo

    Proyecto Arenales

    Subtitulo
    Palermo - Ciudad Autónoma de Buenos Aires
    Proyecto de Remodelación

    Información demográfica
    Ubicación: Calle Arenales
    Palermo | Ciudad Autónoma de Buenos Aires
    Superficie del espacio: 12 m2

    Proyecto arquitectónico, computo y presupuesto para la remodelación de la cocina de 12 m2.
    Más información:
    Ver...
  7. Obra Concordia-Villa del Parque

    Proyecto Concordia

    Subtitulo
    Villa del Parque - Ciudad Autónoma de Buenos Aires
    Proyecto de Remodelación

    Información demográfica
    Ubicación: Calle Concordia
    Villa del Parque | Ciudad Autónoma de Buenos Aires
    Superficie del espacio: xxx m2

    Proyecto arquitectónico de remodelación de Duplex de 3 ambientes con cocina integrada, con baño completo, toillete y garage con patio.
    Más información:
    No disponible
  8. Obra Avalos-Parque Chas

    Obra Avalos

    Subtitulo
    Parque Chas - Ciudad Autónoma de Buenos Aires
    Proyecto de Remodelación

    Información demográfica
    Ubicación: Calle Avalos
    Parque Chas | Ciudad Autónoma de Buenos Aires
    Superficie del espacio:

    Proyecto arquitectónico, dirección de obra, cómputo y presupuesto para realizar la ejecución de la remodelación general de un Departamento de 4 ambientes.
    Más información:
    Ver...
  9. Obra Obligado-Núñez

    Obra Obligado

    Subtitulo
    Núñez - Ciudad Autónoma de Buenos Aires
    Proyecto de Remodelación

    Información demográfica
    Ubicación: Calle Obligado
    Núñez | Ciudad Autónoma de Buenos Aires
    Superficie del espacio:

    Proyecto arquitectónico, dirección de obra, cómputo y presupuesto para realizar la ejecución de la remodelación de la Cocina de un Departamento de 3 ambientes.
    Más información:
    Ver...
ARQ. LUCIA GALÍNDEZ © 2016 | Ciudad Autónoma de Buenos Aires y Pinamar (Pcia.de Buenos Aires) - Argentina
Teléfono: (++54) (011) 6514-6855 | Mail: maluciagalindez@gmail.com | Contacto