Proyectos de Obras
 
 
 
Ir a Linkedin         
Ir a Linkedin
 
Proyectos de Obras

Obra Chacabuco

  1. Tipo-de-Obra
    Proyecto de remodelación de vivienda

    Información demográfica
    Vivienda unifamiliar
    Ubicación: Calle Chacabuco
    San Telmo | Ciudad Autónoma de Buenos Aires
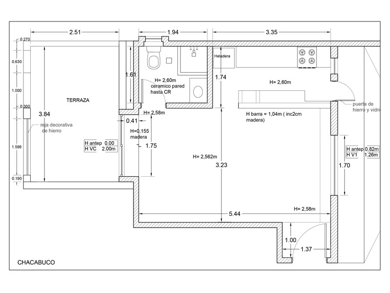
    Superficie de la vivienda: Monoambiente de 30m2 y terraza de 10m2

Imágenes: para desplazar las fotos utilice los íconos de flechas que aparecen cuando se posiciona sobre una foto o sobre la tira de imágenes.


Proyecto arquitectónico, computo y presupuesto para la remodelación de la vivienda unifamiliar de 30 m2 y de su terraza de 10 m2.

 

En el diseño de la remodelación se buscó una modernización y acondicionamiento de la vivienda, cambiando la carpintería de madera por una de aluminio para mejorar la aislación y evitar el ingreso de aire frío, haciéndola más agradable según los deseos del cliente.

 

Se actualizó la instalación eléctrica, haciéndola mas segura.

 

Se cambiaron los pisos de cocina y el ambiente principal, y se adecuaron las paredes y la terraza, impermeabilizándola.

 

O sea, los conceptos fundamentales de diseño considerados, son:

 

  • Requerimiento y necesidades del cliente
  • Confort y aislación térmica
  • Modernización
  • Seguridad de la instalación eléctrica
ARQ. LUCIA GALÍNDEZ © 2016 | Ciudad Autónoma de Buenos Aires y Pinamar (Pcia.de Buenos Aires) - Argentina
Teléfono: (++54) (011) 6514-6855 | Mail: maluciagalindez@gmail.com | Contacto