Proyectos de Obras
 
 
 
Ir a Linkedin         
Ir a Linkedin
 
Proyectos de Obras

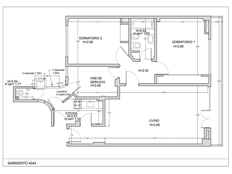
Obra Sarmiento

  1. Tipo-de-Obra
    Proyecto de remodelación de vivienda

    Información demográfica
    Vivienda unifamiliar
    Ubicación: Calle Sarmiento
    Almagro | Ciudad Autónoma de Buenos Aires
    Superficie de la vivienda: 82 m2

Proyecto arquitectónico, computo y presupuesto para la remodelación de la vivienda unifamiliar de 4 ambientes, baño completo y toilette, de 82m2.

 

En el diseño de la remodelación se buscó una modernización y acondicionamiento de la vivienda que previamente se había utilizado como consultorio médico, para adecuarla a su uso como vivienda familiar.

 

Para ello se restauraron sus pisos originales de madera calden, se adecuó la pintura en la totalidad de la vivienda,y se realizó el cambio de artefactos en cocina y de cerámicos en toillete, modernizándolo.

 

Se actualizó la instalación eléctrica, haciéndola mas segura.

 

O sea, los conceptos fundamentales de diseño considerados, son:

 

  • Requerimiento y necesidades del cliente
  • Adecuación para uso familiar
  • Modernización
  • Restauración
  • Seguridad de instalación eléctrica
ARQ. LUCIA GALÍNDEZ © 2016 | Ciudad Autónoma de Buenos Aires y Pinamar (Pcia.de Buenos Aires) - Argentina
Teléfono: (++54) (011) 6514-6855 | Mail: maluciagalindez@gmail.com | Contacto